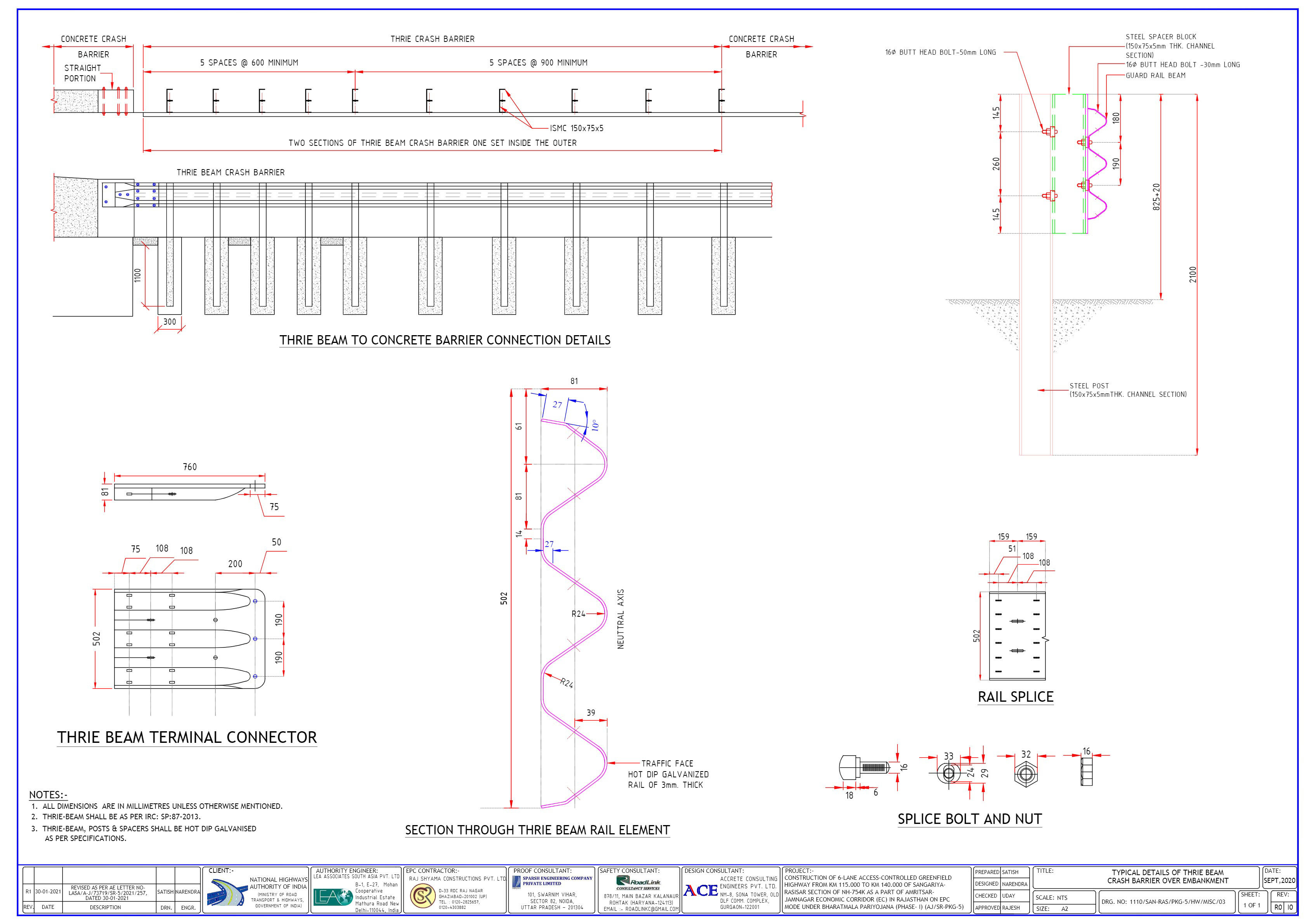
2&3 waves barrier
We provide different road crash barrier,can make two and three waves in same machine, just need change 3 forming station as a cassette, it is very easy and economic. We give in line punching and high speed non stop cutting to get high production. We not only provide machine, we will be provide the whole project design for help you.
Description

Product Detail
2&3 waves barrier is one of main component of Road crash barrier, one machine can make two and three waves profiles, it only need to change 3 forming stations. The machine is with high speed, one minute can produce three products with punching. The whole line adopts servo motors to make the machine more accuracy and efficiency.
Main technology
Heavy duty uncoiler with coil car
Full coil and pinch system
Full automatic high speed on line punching
By cassette design two waves change to three waves
Non-stop high speed cutting
Full automatic stacking and packing
Main spec. of line:
Full line power: about 140KW
Full line speed: 12m/min
Forming station: about 18 stations
Drive by gear box of each station
Full line weight: about 40Tons
Roller material: D3
Punching die and cutting die material: D2
Motor: ESTUN servo
Full line uses motion controller (MC4N-ECAT P901) and a remote control system
Layout for reference:

